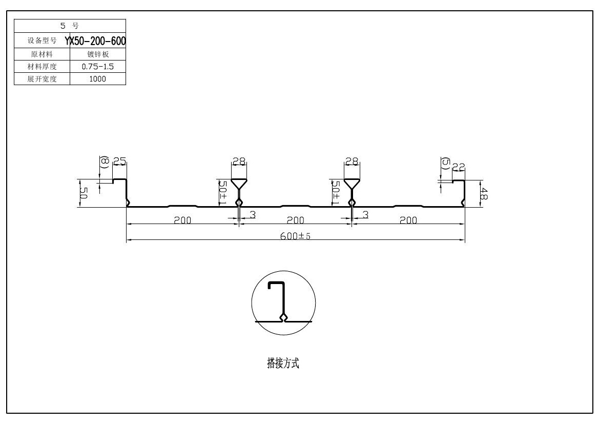
樓承板安裝工藝
海逵樓承板的施工工藝流程大體是這樣的:彈線→清板→吊運→布板→切割→壓合→側焊→端焊→留洞→封堵→驗收→栓釘→布筋→埋件→澆筑→養護。當然這么多的流程是離不開好的勞動組織,以下過程也可按照現場實際情況另行處理。
勞動組織要分兩組:
勞動組織要分兩組:
組負責運料,包括清料、倒運,直至按照施工進度準確無誤地將樓承板吊運至施工部位,包括起重工為5人;
第二組負責鋪設,包括布筋、裁切、安裝、留洞。每3人為一小組,負責一個節間,4個小組在同一作業層同時作業。下道工序綁扎鋼筋與澆筑混凝土時應留派專人對鋪設的樓承板加強維護。具體的做法法是:


一、先在鋪板區彈出鋼梁的中心線,主梁的中心線是鋪設樓承板固定位置的控制線。由主梁的中心線控制樓承板搭接鋼梁的搭接寬度,并決定樓承板與鋼梁熔透焊接的焊點位置。次梁的中心線將決定熔透焊栓釘的焊接位置。因樓承板鋪設后難以觀測次梁翼緣的具體位置,故將次梁的中心線及次梁翼緣寬度返彈在主梁的中心線上,固定栓釘時應將次梁的中心線及次梁翼緣寬度再返彈到次梁面上的樓承板上。
二、在堆料場地將樓承板分層分區按料單清理出,并注明編號,區分清楚層、區、號,用記號筆標明,并準確無誤地運至施工指定部位。
三、吊運時采用專用軟吊索,以保證樓承板板材整體不變形、局部不卷邊。鋼結構設計多層的一般采用3層一節柱安裝工藝,(單層的就不用多說了)安裝樓承板時與鋼結構柱梁同步施工,至少應相差3層。因此樓承板吊運時只能從上層的梁柱間穿套,而起重工應分層在梁柱間控制。
四、采用等離子切割機或剪板鉗裁剪邊角,裁切放線時富余量應控制在5mm范圍內,澆筑混凝土時應采取措施,防止漏漿。
五、樓承板與樓承板側板間連接采用咬口鉗壓合,使單片樓承板間連成整板。先點焊樓承板側邊,再固定兩端頭,后采用栓釘固定。
六、加強混凝土養護。
聯系海逵
