組合樓承板的施工細節有哪些?
組合樓承板知道多少,在上文中小編普及了一下什么是樓承板,接下來小編跟您聊聊組合樓承板的施工細節。
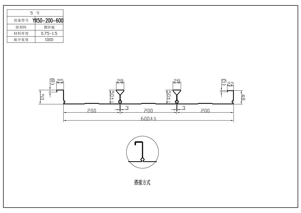
組合樓板承板重機生產的鋼樓承板形狀簡潔,波度大,強度高,安裝時鋪置焊接鋼筋網后與混凝土觀場澆灌組合,粘合性好,在高層建筑上既可以省去鋼模板,又可以減輕樓層承載,在達到同等承受能力的前提下,使工程用鋼量減少,從而節省投資。樓承板間用專用夾緊鉗咬合壓孔連接;堵頭用專用鍍鋅堵頭板與樓承板及鋼梁點焊。


當樓面層結構標高變化不一致時,采取加焊型鋼措施,使水平結構呈臺階過渡,當降低標高時工字梁腹板加焊角鋼;抬升標高時工字梁翼緣加焊槽鋼。當遇到樓面有預留洞口時尺寸一般是大于500mm×500mm時采用先開洞措施,即在鋼梁上加焊型鋼托梁分隔,增加洞口剛度,網片鋼筋在洞口斷開,并與型鋼焊接;洞口尺寸小于500mm×500mm時采取后開洞措施,即在樓承板上增加堵頭分割板,網片鋼筋貫通,混凝土澆筑成型后可剪斷鋼筋。
下一篇:樓承板在現代建筑中的地位
上一篇:閉口樓承板具有的顯著特點”
聯系海逵
