樓承板在工程鋪設中的作用很關鍵
樓承板在工程鋪設中的作用是至關重要的你曉不得不?下面小編就跟您聊一聊這個話題,希望對您有所幫助哦!
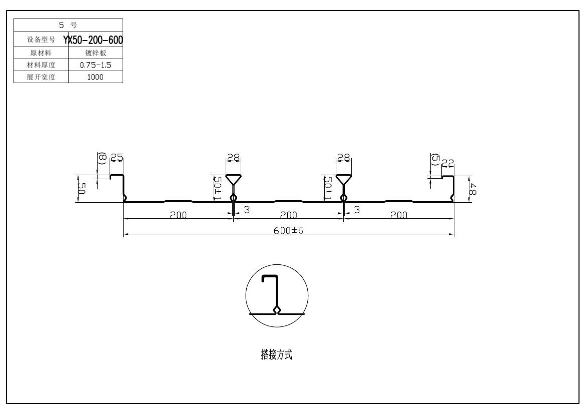
樓承板是各向異性板,可以通過各向異性系數計算有效邊長,根據有效邊長的比來判斷屬于單向板還是雙向板。如果是雙向板,垂直肋方向配筋配在波峰上,順肋方向配在波谷處,保護層要保證大于二十毫米,主要用來保持鋼筋的粘結力??沽t是通過垂直肋方向為肋以上混凝土厚度作為板厚,順肋方向則從波谷算起,也就是說組合樓板的厚度就是板厚。

下一篇:樓承板在工程鋪設中的作用很關鍵
上一篇:樓承板在應用中表現出來的優勢”
聯系海逵
